Добро пожаловать на http://vipplan.ru

Випплан Искитим - это тысячи проектов домов в нашем каталоге!

Вы всегда сможете найти для себя проект дома вашей мечты! Даже если этого не случилось, мы готовы в любую минуту предложить проект индивидуального дома.

Забыли пароль?
Вы еще не регистрировались?

Перейдите по ссылке ниже на страницу регистрации.

Регистрация...

Внимание!!!

В проектную документацию могут быть внесены изменения любой сложности, в соответствии в Вашими пожеланиями!

Полезные статьи

Где копать колодец?

Водоснабжение за городом - Искитим всегда было проблематичным. При отсутствии центрального водоснабжения остается только один выход – выкопать колодец. Водоносный пласт есть не везде. Как же определить, где копать колодец?...

Искусственный камень

Среди современных материалов, особого внимания заслуживает искусственный камень. Естественность и красота натурального камня очевидна. Но нужно реально оценивать свои возможности и присмотреться именно к искусственному камню, так как сам искуственный камень и стоимость производства работ с ним в Искитиме значительно дешевле чем натуральный....

Проекты домов и коттеджей > Каталог проектов домов > Проект дома с мансардой, зимним садом, террасой Vg1391

Проект дома с мансардой, зимним садом, террасой Vg1391

Проект дома с мансардой, зимним садом, террасой
Зарегистрируйтесь

Проект № Vg1391


Техническое описание
Общая площадь: 171.83 м2
Жилая площадь: 103.74 м2
Высота здания: 7.26 м
Размеры дома: 14.06м×14.96м
Кол-во комнат: 6
Цокольный этаж: нет
Гараж: нет
Мансарда: есть

Kонструкция
Фундамент: Стена в грунте
Перекрытия: По деревянным балкам
Материал стен: Бетонные блоки

Архитектурный раздел
Конструктивный раздел
АР+КР - 56 000 (Со скидкой 20%)
Проект индивидуального одноэтажного жилого дома с мансардой с размерами здания 14,06x 14,96 м. Наружная отделка здания – облицовочный кирпич 2х цветов. Фундамент – «стена в грунте» (щелевой), монолитный, ж/б. Наружные стены – керамзитобетонный блок, утеплитель -минвата, вен.зазор, облицовочный кирпич. Внутренние стены — керамзитобетонный блок. Перегородки — гипсовый блок. Пол первого этажа - пол по грунту. Межэтажное перекрытие — по деревянным балкам с использованием теплошумоизоляционных материалов в межбалочном пространстве. Крыша двускатная. Кровля – битумная черепица. Окна - металлопластиковые
Генплан застройки участка / Паспорт проекта 7000 руб / 10000 руб
Инженерный раздел (полный) 86000 руб
Смета на строительство 43000 руб
Теплотехнический расчет материалов стен Бесплатно
Стоимость проекта со незначительнми изменениями 65700 руб
Стоимость проекта со средними изменениями* 78600 руб
Стоимость проекта со значительными изменениями** 82000 руб

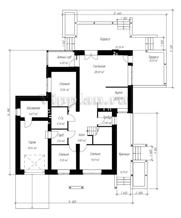
План первого этажа


Тамбур — 2,99 м2
Холл — 11,89 м2
Спальня — 13,04 м2
С/у — 5,10 м2
Гардероб — 3,53 м2
Спальня — 9,35 м2
Спальня — 11,61 м2
Гостиная — 28,69 м2
Кухня — 9,22 м2
Зимний сад — 6,20 м2
Бойлерная — 6,67 м2
Гараж — 19,54 м2

План мансардного этажа


Комната отдыха — 37,09 м2
С/у — 2,85 м2
Кабинет — 21,68 м2
Проект дома с мансардой, зимним садом, террасой Проект дома с мансардой, зимним садом, террасой Проект дома с мансардой, зимним садом, террасой Проект дома с мансардой, зимним садом, террасой
Внесение изменений и привязка к участку строительства

В любой из проектов от компании VIPplan - Искитим по вашему желанию могут быть внесены изменения в материалы стен, материалы наружной отделки дома, а также будет произведена адаптация проекта под конкретный регион строительства (с учетом грунтов региона, геологических особенностей вашего участка и местных климатических условий) - БЕСПЛАТНО !!! (кроме проектов со скидкой и проектов наших партнеров).

Любой из проектов, размещенных на сайте iskitim.vipplan.ru мы можем выполнить из требуемых вам строительных материалов: ячеистый бетон (газобетон, пеноблок), керамоблок, кирпич, шлакоблок, бетонный блок, дерево (брус, клееный брус), каркасная технология (деревянный каркас, металлокаркас (ЛСТК)).

Фасад дома и его наружную отделку так же возможно выполнить с применением различных облицовочных материалов: структурной штукатурки, (с утеплителем и без), сайдингом (пластиковый или металлосайдинг), фиброплитами, кирпича.

 
6 Избранные
проекты

Доставка проектов по России: Москва (Московская область), Санкт-Петербург (Ленинградская область), Краснодар, Ростов-на-Дону, Ставрополь, Сочи, Волгоград, Новосибирск, Белгород, Брянск, Воронеж, Саратов, Хабаровск, Астрахань, Нальчик, Владикавказ, Екатеринбург, Тюмень, Самара, Нижний Новгород, Казань, Пермь, Уфа, Челябинск, Красноярск, Ханты-Мансийск, Иркутск, Курган, Оренбург, Омск, Томск, Барнаул, Новокузнецк, Кемерово, Абакан, Чита, Якутск, Южно-Сахалинск, Петропавловск-Камчатский и страны ближнего зарубежья: Белоруссия, Украина, Казахстан