Добро пожаловать на http://vipplan.ru

Випплан Искитим - это тысячи проектов домов в нашем каталоге!

Вы всегда сможете найти для себя проект дома вашей мечты! Даже если этого не случилось, мы готовы в любую минуту предложить проект индивидуального дома.

Забыли пароль?
Вы еще не регистрировались?

Перейдите по ссылке ниже на страницу регистрации.

Регистрация...

Внимание!!!

В проектную документацию могут быть внесены изменения любой сложности, в соответствии в Вашими пожеланиями!

Полезные статьи

Уклон кровли дома

Чтобы вода быстрее уходила с кровли Вашего дома, скатам необходимо придать уклон, который выражающийся в процентах или градусах и измеряющийся геодезическими инструментами. Уклон кровли обозначает угол наклона ската к горизонту. Чем больше уклон, тем круче крыша. У новомодных зданий наклон кровли делают не очень большим....

Проекты быстровозводимых домов и коттеджей в Искитиме

Некоторые люди до сих пор считают, что быстровозводимые дома представляют собой безликие, недолговечные, однотипные строения. Эти утверждения не соответствуют действительности. На данный момент, строительные технологии шагнули вперед и дома «быстрого приготовления» считаются эталоном комфорта, уюта и даже выделяются, в архитектурном плане, на фоне дорогих кирпичных коттеджей. Быстровозводимые дома не дорогие и изготавливаются в кратчайшие сроки....

Проекты домов и коттеджей > Каталог проектов домов > Проект дома с мансардой Vg988

Проект дома с мансардой Vg988

Проект дома с мансардой
Зарегистрируйтесь

Проект № Vg988


Техническое описание
Общая площадь: 209.26 м2
Высота здания: 8.49 м
Размеры дома: 14.9м×10.9м
Кол-во комнат: 5
Цокольный этаж: нет
Гараж: нет
Мансарда: есть

Kонструкция
Фундамент: Ленточный
Перекрытия: Деревянные балки
Материал стен: Каркас

Архитектурный раздел
Конструктивный раздел
АР+КР - 64 000 (Со скидкой 20%)
Проект индивидуального одноэтажного жилого дома с размерами 14,90 x 10,90 м. Наружная отделка здания – штукатурка и деревянные панели. Цоколь – клинкерная плитка. Фундамент – ленточный монолитный ж/б Наружные стены запроектированы из: деревянного каркаса Внутренние стены и перегородки: из деревянного каркаса Перекрытие чердачное – деревянные балки перекрытия. Материал кровли – металлочерепица Окна - металлопластиковые, выполненные по индивидуальному заказу.
Генплан застройки участка / Паспорт проекта 7000 руб / 10000 руб
Инженерный раздел (полный) 104500 руб
Смета на строительство 52250 руб
Теплотехнический расчет материалов стен Бесплатно
Стоимость проекта со незначительнми изменениями 74750 руб
Стоимость проекта со средними изменениями* 90500 руб
Стоимость проекта со значительными изменениями** 94600 руб

План первого этажа


Прихожая - 9,10 м2
Гостиная - 30,78 м2
Кухня - 14,08 м2
С/у - 14,08 м2
Бойлерная - 9,49 м2
Кабинет - 8,93 м2
Кладовая - 1,39 м2

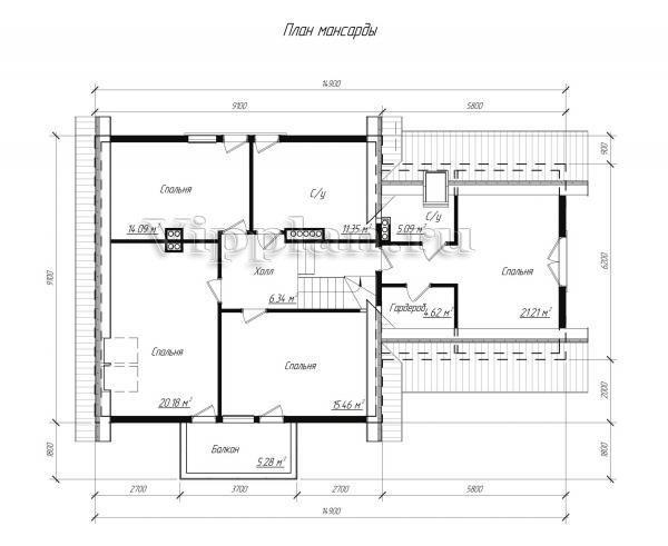
План мансардного этажа


Холл - 6,34 м2
Спальня - 14,09 м2
Спальня - 20,18 м2
Спальня - 15,46 м2
С/у - 11,35 м2
С/у - 5,09 м2
Гардероб - 4,62 м2
Спальня - 21,21 м2
Проект дома с мансардой Проект дома с мансардой Проект дома с мансардой Проект дома с мансардой

Модификации проектов

Внесение изменений и привязка к участку строительства

В любой из проектов от компании VIPplan - Искитим по вашему желанию могут быть внесены изменения в материалы стен, материалы наружной отделки дома, а также будет произведена адаптация проекта под конкретный регион строительства (с учетом грунтов региона, геологических особенностей вашего участка и местных климатических условий) - БЕСПЛАТНО !!! (кроме проектов со скидкой и проектов наших партнеров).

Любой из проектов, размещенных на сайте iskitim.vipplan.ru мы можем выполнить из требуемых вам строительных материалов: ячеистый бетон (газобетон, пеноблок), керамоблок, кирпич, шлакоблок, бетонный блок, дерево (брус, клееный брус), каркасная технология (деревянный каркас, металлокаркас (ЛСТК)).

Фасад дома и его наружную отделку так же возможно выполнить с применением различных облицовочных материалов: структурной штукатурки, (с утеплителем и без), сайдингом (пластиковый или металлосайдинг), фиброплитами, кирпича.

 
6 Избранные
проекты

Доставка проектов по России: Москва (Московская область), Санкт-Петербург (Ленинградская область), Краснодар, Ростов-на-Дону, Ставрополь, Сочи, Волгоград, Новосибирск, Белгород, Брянск, Воронеж, Саратов, Хабаровск, Астрахань, Нальчик, Владикавказ, Екатеринбург, Тюмень, Самара, Нижний Новгород, Казань, Пермь, Уфа, Челябинск, Красноярск, Ханты-Мансийск, Иркутск, Курган, Оренбург, Омск, Томск, Барнаул, Новокузнецк, Кемерово, Абакан, Чита, Якутск, Южно-Сахалинск, Петропавловск-Камчатский и страны ближнего зарубежья: Белоруссия, Украина, Казахстан